Kontaktujte špecialistov z obchodného oddelenia alebo navštívte naše pobočky
							ELEKTRODESIGN ventilátory spol. s r. o.
							Boleslavova 53/15
140 00 Praha 4 – Česká Republika
							elektrodesign[zav]elektrodesign[teč]cz
							www.elektrodesign.cz
						
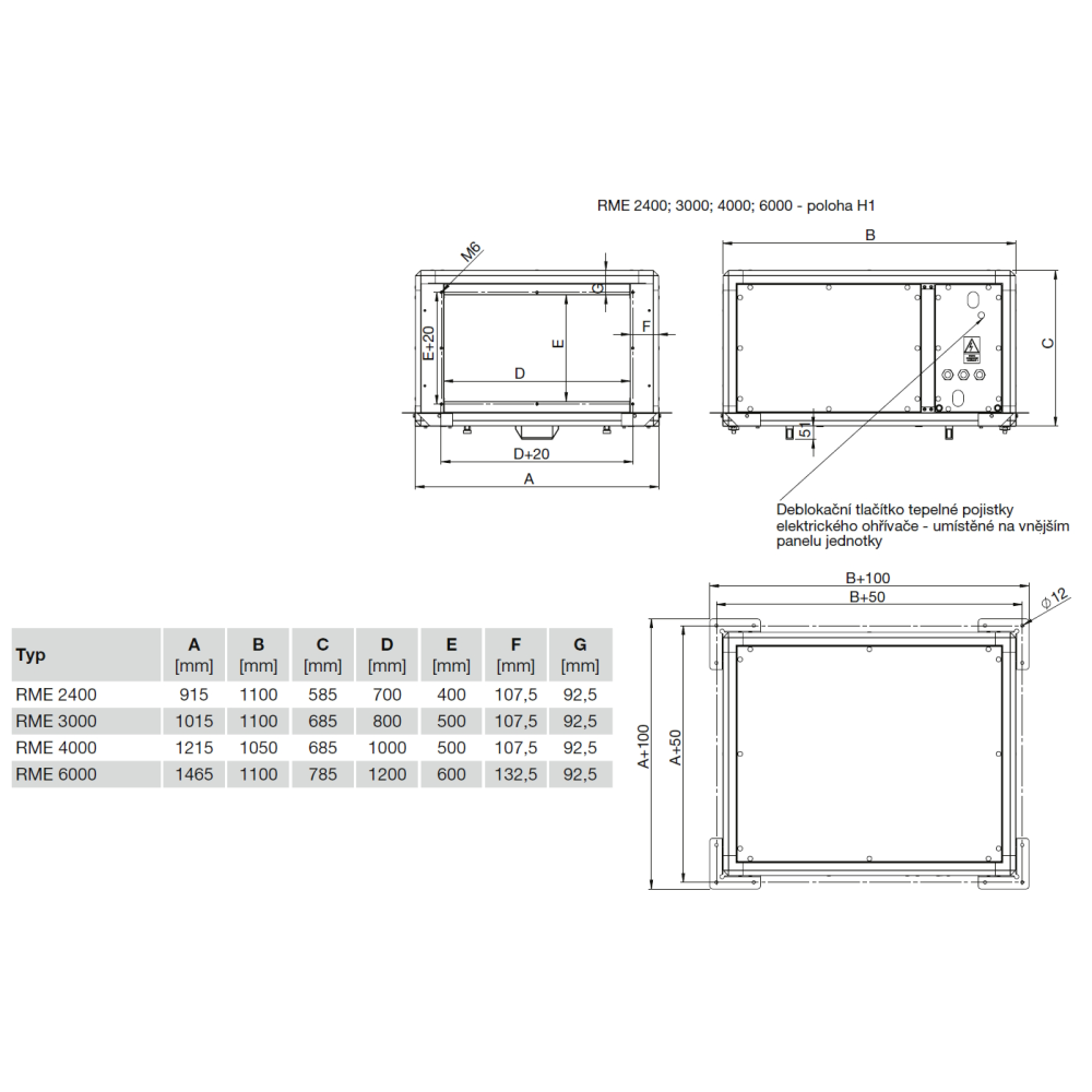
Skrinka
Stenové panely s hrúbkou 45 mm sú vyrobené z pozinkovaného oceľového plechu s vonkajším náterom vo farbe RAL 9002. Panely sú zvnútra vyplnené zvukovou a tepelnou izoláciou z nehorľavej sklenej minerálnej vlny. Na uľahčenie údržby je skriňa jednotky vybavená odnímateľnými dverami so zámkami. Rám jednotky je vyrobený z hliníkových profilov, stenové panely sú do rámu priskrutkované. Prípojky ohrievača vody sú vyvedené do vonkajšieho plášťa jednotky. Skriňa je vybavená 4 závesmi s otvormi Ø 12 mm na montáž jednotky pod podlahu.
Ventilátory
Stenové panely s hrúbkou 45 mm sú vyrobené z pozinkovaného oceľového plechu s vonkajším náterom vo farbe RAL 9002. Panely sú zvnútra vyplnené zvukovou a tepelnou izoláciou z nehorľavej sklenej minerálnej vlny. Na uľahčenie údržby je skrinka jednotky vybavená odnímateľnými dvierkami so zámkami. Rám jednotky je vyrobený z hliníkových profilov, stenové panely sú do rámu priskrutkované. Prípojky ohrievača vody sú vyvedené do vonkajšieho plášťa jednotky. Skriňa je vybavená 4 závesmi s otvormi Ø 12 mm na montáž jednotky pod podlahu.
Motor
Motor EC je namontovaný priamo na obežné koleso ventilátora. Motor ventilátora možno plynule ovládať externým signálom 0...10 V alebo signálom PWM. Motor je vybavený vlastnou zabudovanou tepelnou ochranou. Elektromotor má krytie IP44.
Ohrievač
Ohrievače sú navrhnuté pre teplotný spád vykurovacej vody dT = 20 K (80/60 °C) pri teplote vstupného vzduchu te = -12 °C/90 % r.v. pri menovitom prietoku vzduchu. Elektrické ohrievače sú navrhnuté na teplotu vstupného vzduchu te = -12 °C/90 % r.v. pri menovitom prietoku vzduchu a sú vybavené prevádzkovým a havarijným termostatom.
Filter
Zariadenie obsahuje jeden alebo viac filtračných prvkov filtračnej triedy F7 (voliteľne filtračné triedy G4 až F9), ktoré sú umiestnené v jednej filtračnej stene. Filter je vyrobený z polypropylénového filtračného materiálu. Prístup k filtrom je cez kontrolné dvierka na servisnej strane jednotky. V prípade viacstupňovej filtrácie možno jednotku doplniť filtračnými kazetami MFL s filtračnými vložkami MFR, ktoré sú určené na inštaláciu do potrubia.
El. pripojenie
Napájacie napätie jednotiek je 1 x 230 V / 50 Hz alebo 3 x 400 V / 50 Hz a závisí od vybavenia jednotky. Prívodné káble, káble k snímačom, napájacie káble k ventilátorom sa do jednotky privádzajú cez plastové priechodky v stene jednotky, ktoré nie sú súčasťou dodávky jednotky. Svorkovnica elektrického ohrievača v jednotkách RME je prístupná po odstránení vonkajšieho krytu. Elektrický motor ventilátora má prívodný napájací kábel vedený do plastovej spojovacej skrinky so svorkovnicou umiestnenou vo vnútri jednotky.
Regulácia
Jednotka sa štandardne dodáva bez regulácie. V prípade potreby je jednotka vybavená reguláciou Digireg®. V prípade, že je jednotka vybavená systémom MaR priamo z výroby, všetky snímače a akčné členy sú elektricky pripojené a otestované. Ovládacia skrinka sa umiestni na stenu jednotky podľa aktuálnych priestorových požiadaviek konkrétneho projektu (umiestnenie ovládacej skrinky MaR je potrebné uviesť v objednávke).
Hluk
Hluk uvedený v tabuľkách predstavuje hladiny akustického výkonu na vstupe a výstupe z jednotky s korekciou A a hladinu akustického tlaku vo vzdialenosti 1 m od prevádzkovej strany jednotky (vo voľnom poli Q = 2).
Varianty
• RME - so zabudovaným elektrickým ohrievačom a filtrom 
• RMW - so zabudovaným ohrievačom vody a filtrom 
• RMK - prívodná jednotka s filtrom bez ohrievača
Montáž
Montáž je možná v horizontálnej polohe so servisnou stranou z boku jednotky (označená v kóde jednotky H2) alebo zo spodnej časti jednotky (označená v kóde jednotky H1). Podľa polohy vývodov ohrievača vody alebo polohy pripojovacej svorky elektrického ohrievača (pre veľkosti 2400, 3000, 4000, 6000) je možné rozlišovať aj medzi pravým (P) a ľavým (L) vyhotovením. Poloha L alebo P sa určuje pri pohľade na prednú vstupnú plochu ohrievača v smere prúdenia vzduchu. Vedľa jednotky je potrebný manipulačný priestor na odstránenie veka a filtrov a na vykonávanie pravidelných elektrických kontrol.
Informácie
Jednotka je určená na vetranie komerčných priestorov. Dodanie jednotky do vonkajšieho prostredia je potrebné konzultovať.
Záručné podmienky
Zariadenie RME, RMW, RMK Ekonovent® vrátane riadiaceho systému DVAV, DCAV a DCOP musí uviesť do prevádzky výlučne predávajúci alebo osoba na to určená predávajúcim. Nedodržanie tejto podmienky má za následok zánik práv Kupujúceho z vadného plnenia a Záruky za akosť. Ďalšie podmienky sú uvedené v Reklamačnom poriadku Predávajúceho.
Dodržaním pokynov v návode by nemalo vzniknúť žiadne riziko týkajúce sa bezpečnosti, zdravia a životného prostredia v súlade so smernicami ES (s označením CE). To isté platí pre ostatné výrobky použité v zariadení alebo pri inštalácii. Nasledujúce všeobecné informácie považujte za dôležité:
• dodržujte bezpečnostné pokyny, aby nedošlo ku škodám na zariadení či k zraneniu osôb
• technické informácie uvedené v tomto návode nesmú byť menené
• je zakázané zasahovať do motora zariadenia
• aby zariadenie vyhovovalo smerniciam ES, musí byť zariadenie pripojené k elektrickej sieti v súlade s platnými predpismi
• zariadenie musí byť nainštalované takým spôsobom, aby za bežných prevádzkových podmienok nemohlo dôjsť ku kontaktu s akoukoľvek pohyblivou časťou a/alebo časťou pod napätím
• zariadenie vyhovuje platným predpisom pre prevádzku elektrických zariadení
• pred akýmkoľvek zásahom do zariadenia je nutné ho vždy odpojiť od napájania
• pri manipulácii či údržbe zariadenia je nutné používať vhodné nástroje
• zariadenie musí byť používané iba na účely, na ktoré je určené
• tento spotrebič nesmú používať deti mladšie ako 8 rokov a osoby so zníženými fyzickými, zmyslovými či mentálnymi schopnosťami alebo osoby s nedostatkom skúseností a znalostí, pokiaľ nie sú pod dozorom zodpovednej osoby alebo pokiaľ neboli dostatočne poučené o bezpečnom používaní zariadenia a u ktorých nemôže dôjsť k pochopeniu rizík s tým spojených.
• užívateľ musí zabezpečiť, aby sa so zariadením nehrali deti
• čistenie a údržbu zariadenia nesmú vykonávať deti bez dozoru


 
						 
						 
						 
						 
						 
						 
						 
						 
						 
						 
						 
						 
						 
							 
							 
							 
							 
							 
							 
							 
							 
							 
							 
							 
							 
							 Zdieľať na Facebooku
 Zdieľať na Facebooku Tweet
 Tweet Odoslať e-mail
 Odoslať e-mail









